Amtliche Bekanntmachung
zum Inkrafttreten des vorhabenbezogenen Bebauunsplans Nr. 31 "Alpakahof Frauenwald"
Der von der Stadt Ilmenau am 11.12.2025, Beschluss-Nr. 177/17/25/SR, als Satzung beschlossene vorhabenbezogene Bebauungsplan Nr. 31 der Stadt Ilmenau „Alpakahof Frauenwald" wurde auf Grundlage von § 10 Abs. 2 des Baugesetzbuches (BauGB) in der Fassung der Bekanntmachung vom 3. November 2017 (BGBl. I S. 3634), zuletzt geändert durch Artikel 5 des Gesetzes vom 22.12.2025 (BGBl. 2025 I Nr. 348), mit Bescheid des Thüringer Landesverwaltungsamts vom 03.02.2026, Az. 5090-224-4621/4321-3-43100/2026, genehmigt.
Mit dieser Bekanntmachung tritt der vorhabenbezogene Bebauungsplan Nr. 31 „Alpakahof Frauenwald" gemäß § 10 Abs. 3 BauGB in Verbindung mit § 21 Abs. 1 ThürKO in Kraft.
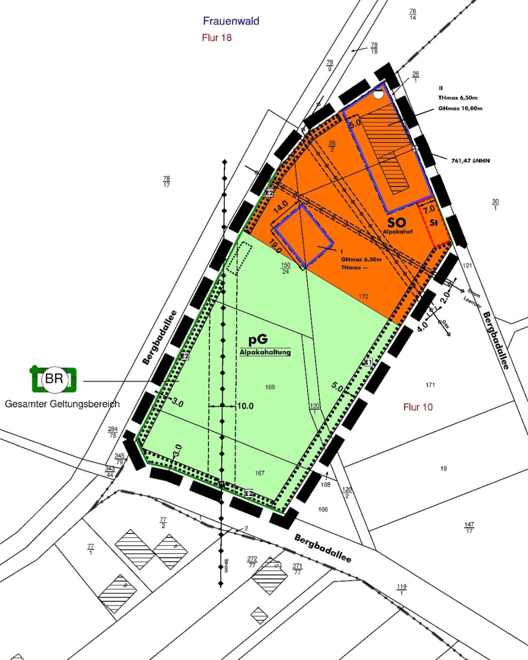
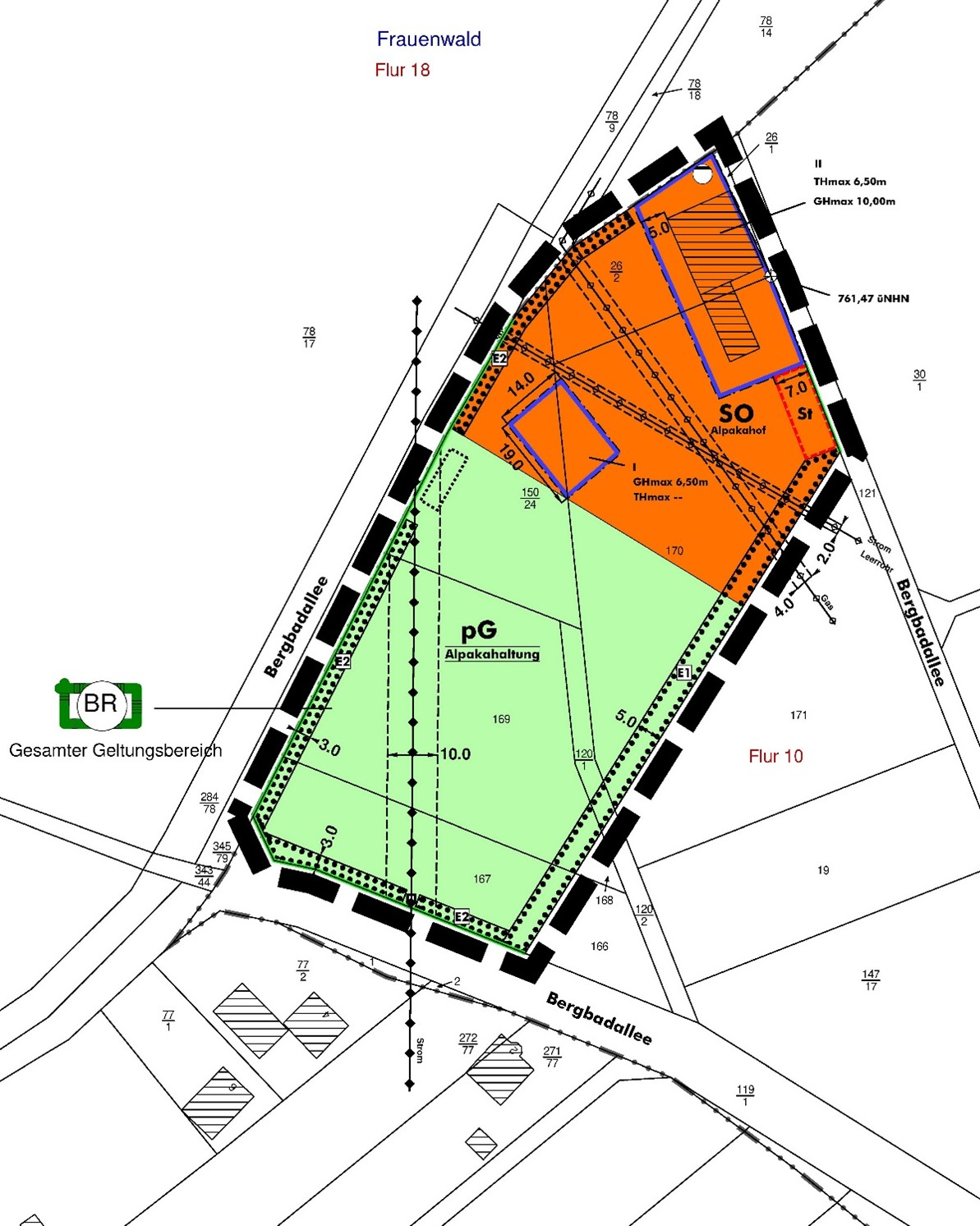
Hinweis zum Geltungsbereich des vorhabenbezogenen Bebauungsplans:
Abweichend zum Aufstellungsbeschluss befinden sich nach der zwischenzeitlich erfolgten Flurstückszerlegung folgende Flurstücke im Geltungsbereich des vorhabenbezogenen Bebauungsplans: Gemarkung Frauenwald, Flur 10, Flurstücke 26/2, 120/1, 150/24, 167, 169 und 170. Der Geltungsbereich des vorhabenbezogenen Bebauungsplans umfasst eine Fläche von ca. 1,0 ha.
Die Bekanntmachung tritt an die Stelle der sonst für Satzungen vorgeschriebenen Veröffentlichungen (§ 10 Abs. 3 Sätze 2 bis 5 BauGB). Gemäß § 10 Abs. 3 Sätze 2 und 3 BauGB wird der vorhabenbezogene Bebauungsplan mit der Begründung ab sofort während der allgemeinen Öffnungszeiten der Stadtverwaltung Ilmenau im Amt für Bau und Verkehr, Weimarer Straße 1 d, 98693 Ilmenau, Zimmer 2.13, zu jedermanns Einsicht bereitgehalten. Auf Verlangen wird über den Inhalt Auskunft erteilt. Entsprechend § 10a Abs. 2 BauGB wird der in Kraft getretene vorhabenbezogene Bebauungsplan mit der Begründung ergänzend unter www.ilmenau.de - Bürgerservice - Planen und Bauen - Stadtentwicklung und Stadtplanung – Bauleitplanung - Bebauungspläne veröffentlicht.
Für den Fall, dass durch den Bebauungsplan Vermögensnachteile im Sinne der §§ 39 – 42 BauGB eintreten, können Entschädigungsansprüche geltend gemacht werden. Die Fälligkeit der Ansprüche kann dadurch herbeigeführt werden, dass die Leistung der Entschädigung schriftlich bei dem Entschädigungspflichtigen beantragt wird (§ 44 Abs. 3 BauGB). Ein Entschädigungsanspruch erlischt, wenn nicht innerhalb von drei Jahren nach Ablauf des Kalenderjahres, in dem die oben bezeichneten Vermögensnachteile eingetreten sind, die Fälligkeit des Anspruchs herbeigeführt wird (§ 44 Abs. 4 BauGB).
Gemäß § 215 BauGB sind unbeachtlich 1. eine nach § 214 Abs. 1 Nr. 1 bis 3 BauGB beachtliche Verletzung der dort bezeichneten Verfahrens- und Formvorschriften und 2. nach § 214 Abs. 3 Satz 2 BauGB beachtliche Mängel der Abwägung, wenn sie nicht innerhalb eines Jahres seit Bekanntmachung des vorhabenbezogenen Bebauungsplans schriftlich gegenüber der Stadt Ilmenau unter Darlegung des die Verletzung begründenden Sachverhalts geltend gemacht worden sind.
Dr. Daniel Schultheiß
Oberbürgermeister

